Champlain, ON K0B 1R0,00000 Farmers AVE
See all 2 photos
Champlain, ON K0B 1R0,00000 Farmers AVE
REQUEST A TOUR If you would like to see this home without being there in person, select the "Virtual Tour" option and your agent will contact you to discuss available opportunities.
In-PersonVirtual Tour
Wed
21
Jan
Thu
22
Jan
Fri
23
Jan
$ 660,734
Est. payment /mo
New

00000 Farmers AVE Champlain, ON K0B 1R0

3 Beds

3 Baths


UPDATED:

Key Details

Property Type Single Family Home

Sub Type Detached

Listing Status Active

Purchase Type For Sale

Approx. Sqft 1500-2000

Subdivision 613 - Vankleek Hill

MLS Listing ID X12714808

Style 2-Storey

Bedrooms 3

Annual Tax Amount $1

Tax Year 2026

Property Sub-Type Detached

Property Description

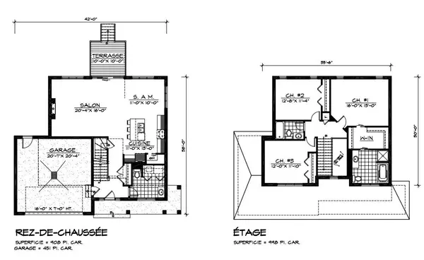
VANKLEEK HILL VALLEYS, a residential project being Built by *HABITATIONS ROBERT*. This home includes Natural Gas central heating, Canexel and Vinyl Siding, Underground hydro, Fibe Internet, Municipal services water and sewage, and paved streets are included. Cozy, quality materials, efficient modern design, and Different options are available- Choose which house model and lot are perfect for you! The home featured here is house model PLAN 16. The basement could be completed at an additional cost. The project is located at the end of Higginson Street (east) and Farmers Ave. Easy access to walking trails and ski trails will be available. New home warranty coverage. OPEN HOUSES EVERY SATURDAY AND SUNDAY FROM 1-3PM AT 9 ARBER STREET, VANKLEEK HILL..

Location

Province ON

County Prescott And Russell

Community 613 - Vankleek Hill

Area Prescott And Russell

Zoning Residential

Rooms

Family Room No

Basement Full, Unfinished

Kitchen 1

Interior

Interior Features Auto Garage Door Remote, Carpet Free, On Demand Water Heater

Cooling None

Inclusions Tankless hot water

Exterior

Exterior Feature Landscaped

Garage Spaces 2.0

Pool None

Roof Type Asphalt Shingle

Lot Frontage 49.21

Lot Depth 122.97

Total Parking Spaces 4

Building

Building Age New

Foundation Poured Concrete

Others

Senior Community Yes

ParcelsYN No

Virtual Tour https://habitationsrobert.ca/property-item/vallees_vankleek_hill/


Listed by LOW'S REALTY INC.
Anabela Bernardino

Anabela Bernardino

Agent

+1(416) 801-9127

GET MORE INFORMATION

Name
Phone*
Message

Go tour this home

00000 Farmers AVE